Купить золоуловитель 1,6 в Ульяновске

  • Компактный золоуловитель для твердотопливных котлов
  • Может устанавливаться как сразу за котлом, так и на улице
  • Универсальная конструкция позволяет организовать выход справа или слева, в зависимости от компоновки газоходов
Цена с НДС:
69 000 рублей
Цена с НДС на золоуловитель 1,6 с доставкой в
от 69 000 рублей
Условия в
В наличии на складе
Доставка ТК по России и Казахстану
Безналичный расчет
Есть в наличии
Золоуловитель ЗУ 1.6
Золоуловитель ЗУ 1.6
Котел с золоуловителем ЗУ-1.6
Котел КВр с золоуловителем ЗУ 1.6
Изготовление золоуловителя ЗУ 1.6
Изготовление золоуловителей ЗУ 1.6
Производство золоуловителей ЗУ 1.6
Производство золоуловителей ЗУ 1.6
Устройство золоуловителя ЭП 1.6
Устройство золоуловителя ЭП 1.6
Золоуловитель ЗУ 1.6
Котел с золоуловителем ЗУ-1.6
Изготовление золоуловителя ЗУ 1.6
Производство золоуловителей ЗУ 1.6
Устройство золоуловителя ЭП 1.6
Видеообзор
Технические
характеристики
Описание
товара
Дополнительно
потребуется
Сертификаты
и гарантии

Технические характеристики золоуловителя 1,6

Тип циклона Золоуловитель
Вид ЗУ
Марка ЗУ 1.6
Камера очищенных газов Сборник
КПД котла на УГЛЕ 80 %
Производительность 6790-9840 м³/ч
Аэродинамическое сопротивление 800 (80) Па (мм. вод. ст.)
Допустимая температура газов на входе до 400 °C
Максимальный расход газа 2.36 м³/с
Сечение входного отверстия 250*1010 мм
Диаметр выходного отверстия 340 мм
Объем бункера накопителя 0.05 м³
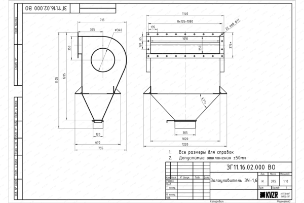
Габаритные размеры: длина, ширина, высота 715х1140х1285 мм
Масса 380 кг
Применяемость Котлы мощностью 1.6 МВт
Чертеж золоуловителя ЗУ 1.6
Золоуловитель ЗУ 1.6 чертеж

Промышленный золоуловитель 1,6 в Ульяновске

Золоуловители ЗУ 1,6 представляют собой горизонтальный циклон, предназначенный для сухой инерционной очистки газов от летучей золы (более 50 мкм) с максимальной температурой 260°С. Золоуловитель 1,6 может устанавливаться как сразу за котлом, так и за пределами котельной на группу котлов. Эксплуатируются в помещениях и вне помещений котельных под навесом при температуре окружающего воздуха от -60°С до +40°С.

На нашем котельном заводе вы также можете приобрести котел паровой угольный. Мы производим модели котлов паровых угольных различных мощностей.

Золоуловители ЗУ 1,6 относятся к типу горизонтального циклона по расположению оси очищаемого потока газа. Дымовой газ поступает во входное отверстие и движется между криволинейными стенками корпуса. Под действием гравитационных сил из потока очищаемого газа выделяются твердые частицы, которые накапливаются в бункере. Зола удаляется через снизу шибер. Очищенный газ отводится из золоуловителя по патрубку через круглое выходное отверстие на боковой стенке. 


В комплект поставки золоуловителей входит: бункер-накопитель и корпус золоуловителя.

Золоуловитель ЗУ 1,6 применяется для улавливания золовых отложений после водогрейных котлов КВр и КВм мощностью 1,6 Гкал.

Технические характеристики золоуловителя 1,6

Параметры Размерность Золоуловитель ЗУ 1,6
Номинальная производительность м³/ч 6700
Диапазон рабочего регулирования % 90-100
Коэффициент очистки % 87
Номинальное аэродинамическое сопротивление Па Не более 800
Максимальная температура газов °С 200
Сечение входного отверстия мм 250×1000
Объем бункера накопителя м³ 0,05
Масса золоуловителя кг 375
Длина мм 720
Ширина мм 1088
Высота мм 1315
Полный срок службы лет Не менее 5
Применение: котел/группа котлов суммарной мощностью до МВт 1,86

Купить золоуловитель 1,6 в Ульяновске

Для того чтобы купить золоуловитель 1,6 в Ульяновске вы можете сделать заявку в отдел сбыта по телефону 8-800-700-0643, либо оформить заказ онлайн. Инженеры-консультанты дадут консультацию и рассчитают стоимость доставки. Транспортирование может осуществляться автотранспортом, ж/д полувагонами и речным транспортом.

КВр котел 1.5 МВт
Котел КВр 1.5
982000 руб. с НДС
  • Самая простая модель с ручной колосниковой топкой
  • Удобно размещается в маленьких помещениях котельных
  • Работает с дымососом и вентилятором
  • Тяга и дутье регулируются шиберами, входящими в комплект поставки
  • Повышенная надежность работы котла обеспечивается изготовлением трубной системы из трубы сталь 10
  • Гарантия 24 месяца, срок службы 10 лет
Котел с ОУР 1.5
Котел 1.5 с ОУР
982000 руб. с НДС
КВм котел 1.5 с ТЛПХ
Котел КВм 1.5 с ТЛПХ
5900000 руб. с НДС
  • Модель с механической топкой прямого хода с ленточным колосниковым полотном ТЛПХ
  • Работа на каменном и буром угле повышенной влажности
  • Полностью автоматизированная работа – подача и равномерное распределение топлива, механическое золоудаление
  • Надежная работа котла обеспечивается изготовлением трубной системы из трубы сталь 10 повышенной прочности
  • Удобные люки для очистки поверхностей нагрева
Котел КВм 1.5 ТШПМ
Котел КВм 1.5 с ТШПМ
1673000 руб. с НДС
  • Модель с механической топкой с шурующей планкой ТШПМ
  • Работа на каменном и буром угле повышенной влажности
  • Полностью автоматизированная работа – подача и равномерное распределение топлива, механическое золоудаление, контроль температуры и давления, контроль перегрузки планки
  • Надежная работа котла обеспечивается изготовлением трубной системы из трубы сталь 10 повышенной прочности
  • Удобные люки для очистки поверхностей нагрева
Котел с РПК топкой
Котел КВ 1.5 РПК
1373400 руб. с НДС
  • Модель с ручным забросом топлива в топку и полуавтоматическим сбросом золы шлака при помощи поворотных опрокидывающихся колосников
  • Дутье и тяга регулируются шиберами
  • Надежная работа котла обеспечивается изготовлением трубной системы из трубы сталь 10 повышенной прочности

Сертификат для золоуловителей
Сертификат на золоуловители

Отзывы о продукции

Другая похожая продукция

1 093 000 ₽
1 837 000 ₽
1 451 000 ₽
170 000 ₽